St.Mary's Condos
about site layout
buildings
sales info condo info contact us
townhouses church building rectory building
school building
virtual tours
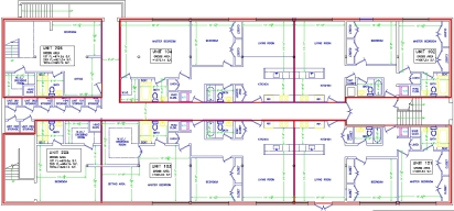
School Building   Model
First Floor Plan
Proposed School Building
30 Broad Street, Marlborough, MA
First Floor Plan

Second Floor Plan
Unit 201 Unit 202 Unit 203 Unit 204 Unit 205 Unit 206

First Floor Plan
Unit 101 Unit 102 Unit 103 Unit 104 Unit 205 Unit 206